業務領域
服務內容
工程實績
繁體中文
English
關於嵐海
人力資源
法規遵循
公司治理
企業承諾
業務領域
服務內容
工程實績
最新消息
工程實績
產業園區用地規劃申請
首頁
工程實績
國內實績
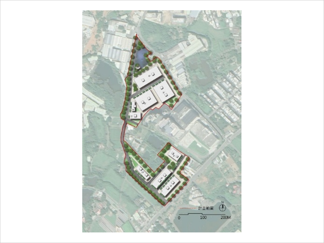
產業園區用地規劃申請
「大溪草厝江產業園區計畫委託技術服務案」委託辦理相關工程規劃
「大園智慧園區計畫委託技術服務案」委託辦理相關工程規劃
「八德大安產業園區計畫委託技術服務案」委託辦理相關工程規劃
新市產業園區設置委託技術服務案
「苗栗縣銅鑼鄉九湖北段(基地二) 」台灣農林產業園區開發案委託辦理相關工程規劃
新竹縣寶山鄉雙峰段產業園區開發案委託辦理相關工程規劃
桃園下埔頂產創委託辦理相關工程規劃
「臺中市龍井區忠和段農業區變更案」委託辦理相關工程規劃
新竹縣芎林鄉五華工業區設置編定申請變更計畫-公共設施工程可行性評估報告委託技術服務案
臺南市關廟區「產創園區」開發許可申請案委託工程規劃服務
新竹市東香段非都市土地申請產業園區委託辦理相關工程規劃
新竹新豐松柏段蓮花產業園區開發案委託辦理相關工程規劃
「大園內海產業園區開發計畫案」委託辦理相關工程規劃
沙崙智慧產業園區開發計畫案委託辦理相關工程規劃
新竹縣寶山鄉雙園段產業園區開發案委託辦理相關工程規劃
「八德大安科技園區二期計畫」委託辦理建築及公用設備規劃作業
高雄市環球路竹產業園區開發案委託辦理公用設備及建築規劃作業
新竹明星段產創園區開發案委託辦理相關工程規劃
「嘉義縣太保市安仁段住宅社區開發案」委託辦理相關工程規劃
上一則:
專案管理
下一則:
出流管制規劃
回列表